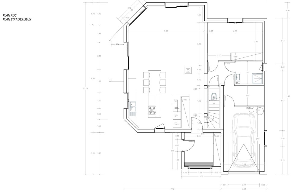
Adresse du projet: Bernin

Enjeux du projet: Rénovation d’une cuisine

Programme: Réorganisation de la cuisine ouverte sur salon. Réalisation d’un coin repas convivial et spacieux.

 

esquisse-1-1

esquisse-1-2

 

PROJET

dsc_0074

dsc_0077

DSC_0039

DSC_0061

DSC_0083

dsc_0057