Projet de maison individuelle:
Adresse du projet: Argeles sur mer
Enjeux du projet: Réalisation d’une maison individuelle pour une famille.
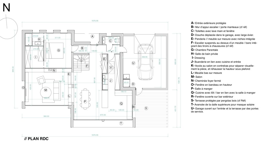
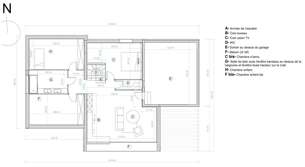
Programme du projet: Entrée ouverte, buanderie / cellier traversant, cuisine ouverte, salle à manger, salon semi ouvert, piscine, Chambre parentale + 3 chambres enfants + dortoir / chambre amis , bureau / salon.






