Adresse du projet: Castelnau

Enjeux du projet: Rénovation maison Castelnau 

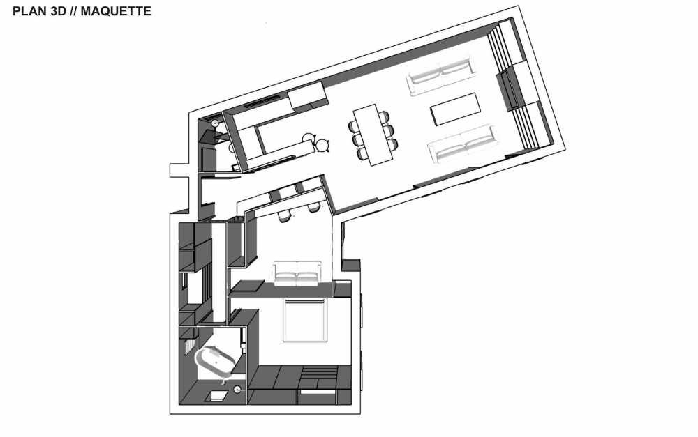
Programme: 1 pièce de vie, cuisine ouverte, 2 chambres, 2 salles de bain

5e677423-4d5c-4201-a37f-e694e3cc3c6e

ESQUISSE 2